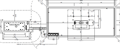
投稿日: 投稿者: comuss施工事例002:秋田県大仙市 施設概要施設区分自家用給油取扱所所在地秋田県大仙市保有車輛数30台(ダンプ、重機)月間使用量50KL程度給油所面積153.0㎡ 施工年月令和3年7月 設備機器計量器管理機内蔵シングル型配管類露出:PLS‐F管(溶接)埋設:熱可塑性樹脂管タンクコンボルトタンク15.0KL型実容量:14.87KL付随設備類キャノピー 資料ダウンロード 〇PDFデータのダウンロードにはパスワードが必要となります。ダウンロードをご希望の方は、弊社担当者までご連絡ください。 Enter Password to Download: PDFダウンロード