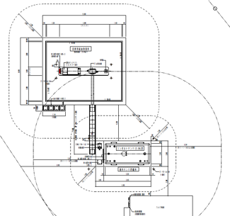
| 施設概要 | |
|---|---|
| 施設区分 | 自家用給油取扱所 |
| 所在地 | 茨城県水戸市 |
| 保有車輛数 | 50台(中型車) |
| 月間使用量 | 50KL程度 |
| 給油所面積 | 76.44㎡ |
| 施工年月 | 令和6年6月 |
| 設備機器 | |
|---|---|
| 計量器 | ダブル型 |
| 配管類 | 露出:PLS‐F管(溶接) 埋設:熱可塑性樹脂管(さや管) |
| タンク | コンボルトタンク15.0KL型 実容量:14.87KL |
| 付随設備類 | 管理機、尿素水ディスペンサー、非常用発電機回路 |
資料ダウンロード
〇PDFデータのダウンロードにはパスワードが必要となります。ダウンロードをご希望の方は、弊社担当者までご連絡ください。






