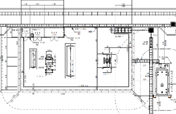
既存の給油所に新たなご提案
既設の自家用給油所にコンボルトタンクを接続しました。
施工コストを抑える。
施工中も給油を可能に出来ました。
| 施設概要 | |
|---|---|
| 施設区分 | 自家用給油取扱所 |
| 所在地 | 新潟県長岡市 |
| 保有車輛数 | 500台(全営業所) |
| 月間使用量 | 80KL程度 |
| 給油所面積 | 299.0㎡(既設) |
| 施工年月 | 令和6年5月 |
| 設備機器 | |
|---|---|
| 計量器 | 管理機内蔵シングル型 |
| 配管類 | 露出:PLS‐F管(溶接) 埋設:熱可塑性樹脂管(さや管) |
| タンク | コンボルトタンク20.0KL型 実容量 : 21.00KL |
| 付随設備類 | キャノピー |
資料ダウンロード
〇PDFデータのダウンロードにはパスワードが必要となります。ダウンロードをご希望の方は、弊社担当者までご連絡ください。






