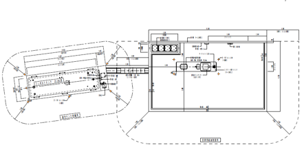
| 施設概要 | |
|---|---|
| 施設区分 | 自家用給油取扱所 |
| 所在地 | 栃木県鹿沼市 |
| 保有車輛数 | 15台 |
| 月間使用量 | 80KL程度 |
| 給油所面積 | 129.5㎡ |
| 施工年月 | 令和5年7月 |
| 設備機器 | |
|---|---|
| 計量器 | シングル型 |
| 配管類 | 露出:PLS‐F管(溶接) 埋設:熱可塑性樹脂管 |
| タンク | コンボルトタンク35.0KL型 実容量 : 36.00KL |
| 付随設備類 | 管理機、尿素水ディスペンサー、非常用発電機回路 |
資料ダウンロード
〇PDFデータのダウンロードにはパスワードが必要となります。ダウンロードをご希望の方は、弊社担当者までご連絡ください。






